Mieszkanie 2.2 (10)
Mieszkanie 2.2 (10) Mieszkanie 2.2 (10)

Mieszkanie 2.2 (10)

Promocja do końca 2018
Dwupokojowe mieszkanie. Przeszklony balkon z widokiem na zatokę i port.

  • Aneks kuchenny
  • Balkon
  • Widok na zatokę

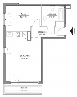
Mieszkanie o powierzchni 52,67 m².
Duży balkon (5,2 m²) osłonięty z jednej strony co zapewnia ochronę przed warunkami atmosferycznymi.
Pokój dzienny (salon) z aneksem kuchennym i wyjściem na balkon o powierzchni 26,59 m², przeszklony od strony balkonu.
Łazienka z możliwością ustawienia wanny lub prysznica (6,48 m²).
Pokój (sypialnia) z przestronnymi oknami i wnęką na szafę (13,56 m²).
Przedpokój z wnęką na szafę (6,04 m²).

Do mieszkania przypisane jest 1 miejsce parkingowe w hali garażowej, które można wykupić w cenie 25 000 zł oraz komórka lokatorska ok. 1,3 m² w cenie 5 000 zł.
W hali garażowej posiadamy 31 miejsc postojowych i w przypadku dostępności, będzie możliwość wykupienia dodatkowych miejsc.

* wizualizacja przedstawia jedną z możliwości ustawienia mebli i wykończenia wnętrz

** promocja na mieszkanie - 5 000 zł obowiązuje w przypadku zawarcia umowy rezerwacyjnej lub zakupu do końca 2018 roku

Zapytaj o ten apartament

Dane kontaktowe

adres

ul. Jaśkowa Dolina 81
Gdańsk

telefon

+48 690 800 811

e-mail

kontakt@bosmanskagdynia.pl

Napisz wiadomość

* - pole wymagane

Ukryj

Podobne apartamenty