Mieszkanie 3.6 (21)
Mieszkanie 3.6 (21) Mieszkanie 3.6 (21)

Mieszkanie 3.6 (21)

Dwupokojowe mieszkanie. Przeszklony balkon z fantastycznym widokiem na zatokę i port.

  • Aneks kuchenny
  • Balkon
  • Widok na zatokę

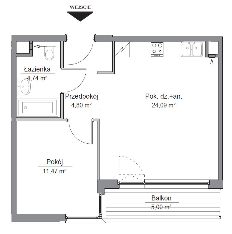
Mieszkanie o powierzchni 45,09 m².
Duży balkon (5,00 m²) we wnęce, zapewnia ochronę przed warunkami atmosferycznymi.
Pokój dzienny (salon) z aneksem kuchennym i wyjściem na balkon o powierzchni 24,09 m², przeszklony od strony balkonu.
Łazienka z możliwością ustawienia wanny lub prysznica (4,74 m²).
Pokój (sypialnia) z przestronnymi oknami (11,47 m²).
Przedpokój z wnęką na szafę (4,80 m²).

Do mieszkania przypisane jest 1 miejsce parkingowe w hali garażowej, które można wykupić w cenie 25 000 zł oraz komórka lokatorska ok. 1,3 m² w cenie 5 000 zł.
W hali garażowej posiadamy 31 miejsc postojowych i w przypadku dostępności, będzie możliwość wykupienia dodatkowych miejsc.

* wizualizacja przedstawia jedną z możliwości ustawienia mebli i wykończenia wnętrz

Zapytaj o ten apartament

Dane kontaktowe

adres

ul. Jaśkowa Dolina 81
Gdańsk

telefon

+48 690 800 811

e-mail

kontakt@bosmanskagdynia.pl

Napisz wiadomość

* - pole wymagane

Ukryj

Podobne apartamenty